🌱 Dainas 8, Rīga
1 / 19 ▶



















Informācija
€1250000
| Tips | zeme |
| Adrese | Dainas iela 8, Rīga, LV-1001 |
| Platība | 943 m² |
| Pielietojums | Daudzstāvu būve |
| Koordinātes | 56.958353, 24.137985 ↗ |
| Publicēts | 24.03.2026 09:46 |
| Avots | ss.com |
Zeme ar daudzdzīvokļu mājas būvprojektu un iesāktu būvniecību.
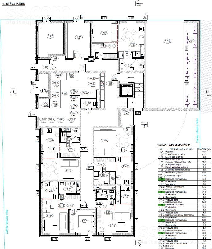
Projektā ir 33 dzīvokļi ar vidējo platību 68 kvm (kopā 2159 kvm + 21 balkons 104 kvm = 2263 kvm) plus 9 stāvvietas (362 kvm) un 17 glabātuves cokolstāvā.
Kopējā platība 3131 kvm.
Būvatļauja beigusies 2025.gada februārī.
Būvdarbi tika uzsākti 2022.gada vasarā, bet pēc pusgada pārtraukti.
Šobrīd objektā ir izbūvēts:
- pāļu lauks, mikropāļi ēkai Dainas 6, nulles cikls, stāvs -1;
- 1. un 2. stāvs;
- pieslēgums Rīgas siltumam.
Mājā paredzēti 1 līdz 4 istabu dzīvokļi no 27 - 135 kvm. Visiem dzīvokļiem ir logi no grīdas līdz griestiem. Griestu augstums ir ap 275 cm. Katrā dzīvoklī virtuves zona apvienota ar viesistabu. Atkarībā no dzīvokļa sanmezglos ir vai nu dušas kabīne vai vanna.
Iespēja arī projektu nevis nopirkt, bet finansēt ar 800 000 eur, jo bankā ir apstiprināts kredīts 2 600 000 eur apjomā.
Šobrīd projektā ir ieguldīti 2 000 000 eur, ieskaitot zemes iegādi, projekta izstrādi, būvdarbus, utt, kas nav apķīlāti.
Detalizētāka informācija pēc pieprasījuma.
Pieejams 2025.gada vērtējums esošajam īpašumam (1 700 000 eur) un pabeigtam projektam (5 825 000 eur).
Atrašanās vieta: tuvumā parks, tuvumā veikali un kafejnīcas, tuvumā skolas un bērnudārzi, ērta sabiedriskā transporta kustība
Komunikācijas: pilsētas apkure, pilsētas ūdens apgāde, pilsētas kanalizācija
Drošība: slēgta teritorija
---
Land with an apartment building construction project and commenced construction.
The project includes 33 apartments with an average area of 68 sqm (total 2, 159 sqm + 21 balconies of 104 sqm = 2, 263 sqm), plus 9 parking spaces (362 sqm) and 17 storage rooms in the basement.
Total area 3131 sq m.
The building permit expired in February 2025. Construction work began in the summer of 2022 but was halted after six months.
Currently, the following has been constructed on-site:
- Pile field, micro-piles for the building at Dainas 6, zero cycle, basement level (-1);
- First and second floors;
- Connection to Riga's district heating system.
The building is designed for 1 to 4-room apartments ranging from 27 to 135 sqm. All apartments feature floor-to-ceiling windows. The ceiling height is approximately 275 cm. Each apartment has a kitchen area combined with the living room. Depending on the apartment, the bathrooms are equipped with either a shower or a bathtub.
There is also an option to finance the project with EUR 800, 000 instead of purchasing it outright, as a bank loan of EUR 2, 600, 000 has been approved.
To date, EUR 2, 000, 000 has been invested in the project, including land acquisition, project development, construction work, etc. , none of which is mortgaged.
More detailed information is available upon request.
A 2025 valuation is available for the existing property (1, 700, 000 euros) and the completed project (5, 825, 000 euros).
Location: park nearby, shops and cafes nearby, schools and kindergartens nearby, convenient public transport
Communications: city heating, city water supply, city sewage
Security: closed territory
Property ID number: 63962