🏠 Dzintaru 4, Berģi, Rīgas rajons, Garkalnes nov.
1 / 34 ▶


































Informācija
€329000
| Tips | maja |
| Adrese | Dzintaru iela 4, Berģi, Garkalnes pag., Ropažu nov., LV-1024 |
| Istabas | 5 |
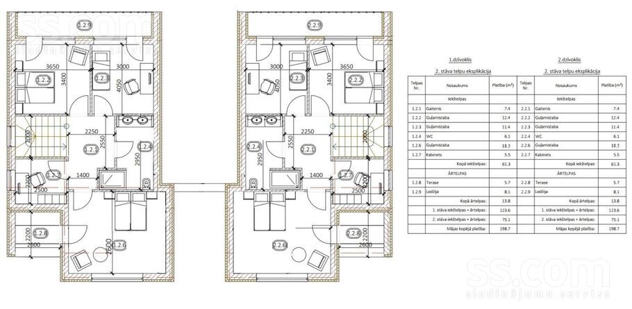
| Platība | 198 m² |
| Zemes platība | 603 m² |
| Stāvu skaits | 2 |
| Koordinātes | 56.991769, 24.307823 ↗ |
| Publicēts | 22.03.2026 18:34 |
| Avots | ss.com |
Īpašnieks piedāvā iegādāties ekspluatācijā nodotu, kvalitatīvi būvētu un energoefektīvu māju mierīgā un sakoptā privātmāju rajonā Berģu ciematā, kuras pārdošanas cena atbilst vērtējuma cenai. Tā ir atsevišķa puse no divģimeņu mājas ar pilnībā nodalītu teritoriju un komunikācijām, nodrošinot pilnvērtīgu privātmājas sajūtu.
Īpašuma raksturojums:
Zemesgabals (atsevišķā lietošanā) – 603 m²
Dzīvojamā platība – 135 m²
Kopējā platība – 198, 7 m²
Māja, tai piegulošā teritorija un visas komunikācijas ir pilnībā sadalītas, nodrošinot neatkarīgu lietošanu.
Būvniecība un tehniskie risinājumi:
Mūra konstrukcijas māja, dzelzsbetona pārsegumi, A+ energoefektivitāte, apkure – siltumsūknis (gaiss–ūdens), parketa grīdas segums, siltās grīdas visā mājā abos stāvos, centralizētā rekuperācijas sistēma, ūdens - atsevišķa spice, kanalizācija - bioloģiskā (atsevišķa), nožogota un apzaļumota teritorija, bruģēts pagalms, automātiski iebraucamie vārti - katrai mājas pusei atsevišķi.
Plānojums:
1. stāvs
Priekšnams, plaša dzīvojamā istaba un virtuve, kas ir nodalītas atsevišķās zonās, bet ir savienotas ar plašu koridoru, katlu telpa, vannas istaba.
2. stāvs
Trīs guļamistabas, vannas istaba, atsevišķa telpa ar logu – piemērota kabinetam vai garderobei, 3 balkoni – izeja no katras guļamistabas ar skaistu skatu uz Berģu ciematu.
Ārtelpas:
Plaša terase un mantu glabātava.
Klusa, ģimenēm draudzīga vide. Līdz sabiedriskā transporta pieturai 12 min pastaigas attālums. Ideāla izvēle tiem, kas novērtē kvalitatīvu būvniecību, energoefektivitāti un mierīgu dzīves vidi netālu no Rīgas.
Sazinieties, lai vienotos par apskates laiku un saņemtu papildu informāciju.
---
The owner offers a newly completed, high-quality and energy-efficient home located in a quiet and well-maintained private housing area in the village of Berģi. The sale price corresponds to the official bank valuation. This property is one half of a semi-detached house with a fully separated territory and utilities, providing the comfort and privacy of a standalone private home.
Property details:
Land plot (exclusive use): 603 m²
Living area: 135 m²
Total area: 198.7 m²
The house, surrounding territory, and all utilities are fully divided, ensuring independent use.
Construction and technical features:
Masonry construction house, reinforced concrete floors, A+ energy efficiency rating, heating system – air-to-water heat pump, parquet flooring, underfloor heating throughout the house on both floors, centralized heat recovery ventilation system, water supply – separate borehole, sewerage – separate biological treatment system, fenced and landscaped territory, paved courtyard, automatic entrance gates – separate for each side of the house.
Layout:
1st floor
Entrance hall
Spacious living room and kitchen arranged in separate zones but connected by a wide corridor
Boiler room
Bathroom
2nd floor
Three bedrooms
Bathroom
Separate room with a window – suitable for a home office or walk-in wardrobe
3 balconies – access from each bedroom with a beautiful view over the Berģi area
Outdoor:
Spacious terrace and storage room.
A quiet and family-friendly environment. The public transport stop is within a 12-minute walk. An ideal choice for those who appreciate quality construction, energy efficiency, and a peaceful living environment close to Riga.
Contact us to arrange a viewing and receive additional information.