🏢 Ludviķa 12, Liepāja un raj., Liepāja
1 / 30 ▶






























Informācija
€72000
| Tips | dzivoklis |
| Adrese | Ludviķa iela 12, Liepāja, LV-3401 |
| Istabas | 2 |
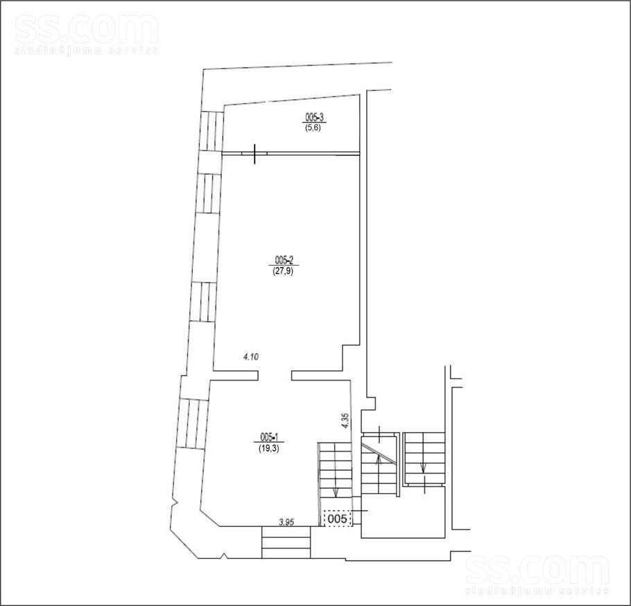
| Platība | 53 m² |
| Stāvs | 1/3 |
| Sērija | P. kara |
| Mājas tips | Koka |
| Ērtības | Parkošanas vieta |
| Koordinātes | 56.507033, 21.006934 ↗ |
| Publicēts | 21.03.2026 23:13 |
| Avots | ss.com |
Īpašnieks pārdod gaumīgu 2 istabu dzīvokli pašā Liepājas centrā ar kopējo platību 52, 8m² pēc kvalitatīva kapitālā remonta. Dzīvoklis atrodas ēkas cokolstāvā, ar 2, 7m augstiem griestiem, kas piešķir telpām plašumu un gaismu.
2025.g beigās dzīvoklī pabeigts kvalitatīvs kapitālais remonts- samainītas sijas, papildus nostiprinātas un sabetonētas ārsienas, veikta hidroizolācija visam perimetram. Nosiltinātas sienas, griesti, ielieta Estrich grīda, uzstādītas metāla kāpnes ar ozolkoka pakāpieniem un palodzēm, ieklāts augstas klases praktisks vinila grīdas segums. Uzstādītas modernas skaņu izolējošas metāla durvis ar mūsdienīgu elektronisko slēdzeni (var atvērt ar kodu, telefonu, pirkstu nospiedumu, karti u. c. ) Ir uzstādīti jauni, kvalitatīvi 3 kameru logi, kas nodrošina gan siltumu gan skaņas izolāciju.
Mājai ir centralizētā pilsētas apkure ar individuālajiem skaitītājiem.
Visā dzīvoklī ir siltās grīdas ar iespēju regulēt katru zonu gan manuāli, tā arī attālināti no telefona aplikācijas.
Tāpat izveidota jauna elektroinstalācija - 3 fāžu pieslēgums, ekonomisks LED apgaismojums, pārdomāti rozešu un slēdžu risinājumi. No dzīvokļa līdz sētai ir izvilkts arī jaudīgs kabelis ar iespēju pieslēgt pēc vajadzības elektroauto uzlādes staciju.
Vannas istabai individuāli izgatavotas durvis ar pieskaņotu furnitūru. Tā aprīkota ar kvalitatīvu santehniku- Hansgrohe dušas sistēma ar termostatu, jika pods, laufen poda rāmis ar pogu, Vilo kanalizācijas sūknis, elektriskais dvieļu žāvetājs ar regulatoru u. c.
Virtuves zonā ir izvilktas visas komunikācijas un elektroinstalācijas.
Priekštelpā speciāli izveidota niša iebūvētajam skapim pēc vajadzības.
Zemi komunālie maksājumi. Pagalmā pieejama autostāvvieta.
Ēka un komunikācijas:
2024. gadā fasādei atjaunots un nosiltināts cokolstāvs.
2025.g atjaunota apkures sistēma, izremontēta kāpņu telpa.
2026.gadā plānota fasādes renovācija un krāsošana.
Atrašanās vieta:
Lieliska lokācija viss nepieciešamais pāris minūšu gājiena attālumā:
Jūra – 800 m (10 min)
Pētertirgus – 230 m (4 min)
Skolas un bērnudārzi – 500 m
Rožu laukums un T/C “Kurzeme” – 300 m (5 min)
Liepājas teātris, koncertzāle Lielais Dzintars – 700 m (10 min)
Parks atpūtai un pastaigām – 700 m attālumā
200m rādiusā tramvaja un autobusa pieturas.
Telpas iespējams pielāgot gan ofisam, salonam vai arī kā investīciju īstermiņa īres dzīvoklim.
Šis ir ideāls piedāvājums tiem, kas novērtē estētiku un kvalitāti pašā Liepājas sirdī, tikai dažu minūšu gājienā no jūras, tirgus un parka.
RUS:
Продается двухкомнатная квартира в самом центре Лиепаи общей площадью 52, 8 м² после качественного ремонта.
Квартира расположена на цокольном этаже, высота потолков 2, 7 м, что придает комнатам простор и свет.
В квартире был проведен качественный ремонт: установлены дубовые лестница и подоконники, уложено высококачественное виниловое напольное покрытие. Установлены современные звукоизолирующие металлические двери с электронным замком (открываются кодом, телефоном, отпечатком пальца, картой и т. д. ). Установлены новые высококачественные трехкамерные окна, обеспечивающие как тепло-, так и звукоизоляцию.
В доме централизованное городское отопление с индивидуальными счетчиками.
Вся квартира оборудована системой подогрева пола с возможностью регулирования каждой зоны отдельно с помощью приложения на телефоне.
Также была создана новая электропроводка – трехфазное подключение, экономичное светодиодное освещение, продуманные решения по розеткам и выключателям. Из квартиры во двор также проложен мощный кабель, позволяющий при необходимости подключить станцию зарядки электромобилей.
В кухонной зоне выведены все коммуникации и электропроводка.
В ванной комнате установлены двери индивидуального изготовления с соответствующей фурнитурой. Она оборудована высококачественной сантехникой: душевая система Hansgrohe с термостатом, унитаз Jika, унитаз Laufen с кнопкой, канализационный насос Vilo, электрическая полотенцесушитель с регулятором и т. д.
В коридоре специально подготовлена ниша для встроенного шкафа, если это необходимо.
Низкие коммунальные платежи. Для каждой квартиры имеется частная парковка во дворе.
Здание и коммуникации:
В 2024 году был отремонтирован и утеплен подвал.
В 2025 году была полностью отремонтирована система отопления и лестница.
В 2026 году планируется ремонт и покраска фасада.
Расположение:
Отличное расположение, все необходимое в нескольких минутах ходьбы:
Море - 800 м (10 мин)
Петербургский рынок - 230 м (4 мин)
Школы и детские сады - 500 м
Площадь Роз и торговый центр Курземе - 300 м (5 мин)
Театр Лиепая, концертный зал Лиелайс Дзинтарс - 700 м (10 мин)
Парк отдыха и прогулок - 700 м
Трамвайные и автобусные остановки в радиусе 200 м.
Помещение может быть адаптировано под офис, салон или использоваться в качестве инвестиционного объекта для краткосрочной аренды.
Это идеальное предложение для тех, кто ценит эстетику и качество в самом сердце Лиепаи, всего в нескольких минутах ходьбы от моря, рынка и парка.
ENG:
The owner is selling a 2-room apartment in the very center of Liepāja with a total area of 52.8 m² after a high-quality overhaul.
The apartment is located on the basement floor, with 2.7 m high ceilings, which gives the rooms spaciousness and light.
The apartment has undergone a high-quality overhaul, oak stairs and window sills have been installed, and high-class vinyl flooring has been laid. Modern soundproof metal doors with a modern electronic lock have been installed (can be opened with a code, telephone, fingerprint, card, etc. ) New, high-quality 3-chamber windows have been installed, which provide both heat and sound insulation.
The house has centralized city heating with individual meters.
The entire apartment has underfloor heating with the ability to regulate each zone separately from the phone application.
A new electrical installation has also been created - 3-phase connection, economical LED lighting, thoughtful socket and switch solutions. A powerful cable has also been pulled from the apartment to the yard with the option to connect an electric car charging station if necessary.
All communications and electrical installations have been pulled out in the kitchen area.
The bathroom has individually made doors with matching fittings. It is equipped with high-quality plumbing - hansgrohe shower system with thermostat, Jika toilet, Laufen toilet frame with button, Vilo sewage pump, electric towel dryer with regulator, etc.
A niche has been specially created in the hallway for a built-in wardrobe if necessary.
Low utility payments. Private parking is available in the yard for each apartment.
Building and communications:
In 2024, the basement was renovated and insulated.
In 2025, the heating system was completely renovated, the staircase was renovated.
In 2026, the facade is planned to be renovated and painted.
Location:
Excellent location, everything you need within a few minutes' walk:
Sea – 800 m (10 min)
Peter's Market – 230 m (4 min)
Schools and kindergartens – 500 m
Rožu laukums and T/C “Kurzeme” – 300 m (5 min)
Liepāja Theatre, concert hall Lielais Dzintars – 700 m (10 min)
Park for relaxation and walks – 700 m away
Tram and bus stops within a radius of 200 m.
The premises can be adapted for an office, salon or as an investment for a short-term rental apartment.
This is an ideal offer for those who appreciate aesthetics and quality in the heart of Liepāja, just a few minutes' walk from the sea, market and park.