🏢 Pērnavas 52, Rīga
1 / 28 ▶




























Informācija
€85000
| Tips | dzivoklis |
| Adrese | Pērnavas iela 52, Rīga, LV-1009 |
| Istabas | 4 |
| Platība | 82 m² |
| Stāvs | 2/2 |
| Sērija | P. kara |
| Mājas tips | Mūra |
| Ērtības | Parkošanas vieta |
| Koordinātes | 56.957881, 24.152258 ↗ |
| Publicēts | 20.03.2026 21:38 |
| Avots | ss.com |
Dzīvoklis skaistā un iekoptā Rīgas tālajā centrā pie Grīziņkalna.
Piedāvājam iegādāties remontējamu dzīvokli ar Rīgas būvvaldē apstiprinātu pārbūves projektu.
Dzīvoklis var būt gan kā lielisks investīciju ieguldījums ar dzīvojamām īres telpām, kā arī izīrēt daļu no īpašuma kā atsevišķu dzīvokli. Abiem dzīvokļiem ir kopēja ieeja ar vienu koridori.
:Projektā ir atsevišķi sanmezgli.
:Iekārtojamas atsevišķas virtuves.
Ir iesākts pārbūves remonts: Demontētas projektā neparedzētās sienas, daļēji savilkta elektro instalācija. Ūdens sistēma daļēji savilkta.
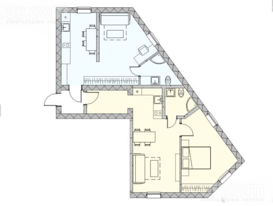
Kopējā platība: 82.2m2, kas sadalīta divos atsevišķos dzīvokļos; dzīvoklis A:32.7m2; dzīvoklis B: 46.5m2
Tiek izstrādāts projekts ēkas renovācijai, ar mērķi pieteikties pašvaldības atbalsta programmai.
Zeme īpašumā.
Mājas pagalmā iekārtota autostāvvieta.
Ērta piebraukšana īpašumam.
Blakus Grīziņkalna parks ar tā piedāvātajām iespējām
:Bērnu laukums
:Ghetto Games sporta laukums un āra trnežieri
:lieliska pastaigu un skriešanas vieta
Netālu esošajā Ziedoņdārzā ir arī ierīkots suņu izklaides parks.
Tuvējā apkārtnē dažādas izglītības iestādes: Grīziņkalna vidusskola, 6. vidusskola, Rīgas centra humanitārā vidusskola.
10 minūšu gājiena attālumā Kr. Barona ielas sporta laukums.
Netālu atrodas “BTA Daugavas stadions”
Ērti pieejams sabiedriskais transports.
Bildēs redzmās vizualizācijas un foto ar pabeigto dzīvokļa remontu nes informatīvu saturu.
Квартира в красивом и ухоженном районе центральной Риги рядом с Гризинкалнсом.
Предлагаем к продаже квартиру, требующую ремонта, с одобренным проектом реконструкции Рижская строительная инспекция.
Квартира может быть отличным инвестиционным вложением с жилыми арендуемыми помещениями, а также можно сдавать часть имущества как отдельную квартиру. Обе квартиры имеют общий вход через один коридор.
Проект включает отдельные санитарные узлы.
Можно устроить отдельные кухни.
Начат ремонт: демонтированы стены, не предусмотренные проектом, частично выполнена электропроводка. Водоснабжение частично проведено.
Общая площадь: 82.2 м², разделенная на два отдельных жилья:
Квартира А: 32.7 м²
Квартира B: 46.5 м²
Разрабатывается проект для ремонта здания с целью подачи заявки на программу муниципальной поддержки.
Земля в собственности .
Во дворе дома организована парковка.
Удобный подъезд к собственности.
Рядом находится парк Гризинкалнс с предложенными возможностями:
Детская площадка
Спортивная площадка Ghetto Games и уличные тренажеры
Отличное место для прогулок и бега
В соседнем Зиедондзарс также есть парк для отдыха с собаками.
В непосредственной близости находятся различные учебные заведения, такие как: Средняя школа Гризинкалнс, 6-я средняя школа, Рижская гуманитарная средняя школа.
В 10 минутах пешком спортивная площадка на улице Кришьяня Барона.
Недалеко находится стадион "BTA Daugava, "
Удобный доступ к общественному транспорту.
Представленные на фотографиях визуализации и снимки завершенного ремонта квартиры содержат информативный контент.
Apartment in the beautiful and well-maintained area of central Riga near Grīziņkalns.
We offer for sale an apartment requiring renovation, with an approved reconstruction project by the Riga Building Authority.
The apartment can serve as an excellent investment with residential rental spaces, or you can rent out part of the property as a separate apartment. Both apartments share a common entrance with a single corridor.
The project includes separate sanitary facilities.
Separate kitchens can be arranged.
Renovation work has begun: walls not included in the project have been demolished, and partial electrical installation has been done. The water system has been partially installed.
Total area: 82.2m², divided into two separate apartments:
Apartment A: 32.7m²
Apartment B: 46.5m²
A project for the renovation of the building is being developed, aiming to apply for municipal support.
The land owned.
A parking area is arranged in the yard of the house.
Easy access to the property.
Next to the Grīziņkalns Park with its offered amenities:
Children’s playground
Ghetto Games sports ground and outdoor fitness equipment
A great place for walking and jogging
Near Ziedoņdārzs, there is also a dog park for recreation.
In the vicinity, there are several educational institutions, such as: Grīziņkalns Secondary School, 6th Secondary School, Riga Center Humanities Secondary School.
A 10-minute walk to the Kr. Barona Street sports ground.
Nearby is the "BTA Daugava Stadium, "
Convenient access to public transport.
The visualizations and photos of the completed apartment renovation shown in the photos carry informative content.