🏢 Rūpnīcas 21, Liepa, Cēsis un raj., Liepas pag.
1 / 8 ▶








Informācija
€39500
| Tips | dzivoklis |
| Adrese | Rūpnīcas iela 21, Liepa, Liepas pag., Cēsu nov., LV-4128 |
| Istabas | 2 |
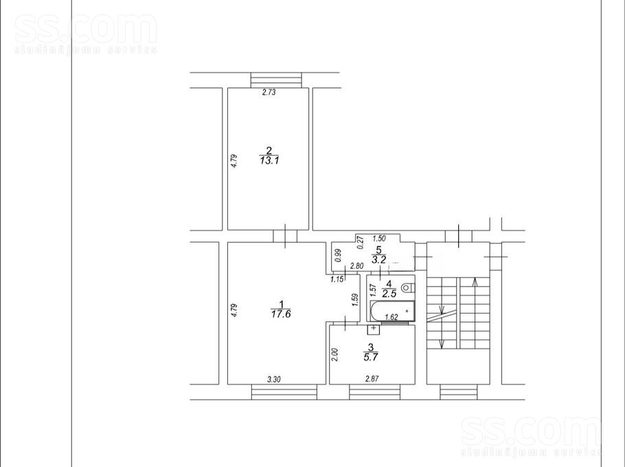
| Platība | 42 m² |
| Stāvs | 2/5 |
| Sērija | 467. |
| Mājas tips | Ķieģeļu |
| Koordinātes | 57.385704, 25.424617 ↗ |
| Publicēts | 19.03.2026 13:56 |
| Avots | ss.com |
Pārdod izremontētu, gaišu divistabu dzīvokli Liepā, Rūpnīcas ielā.
- Platība: 42 m2;
- Stāvs: 2/5;
- Plānojums: divas istabas, virtuve, vannas istaba, gaitenis;
- Ekonomiski komunālie maksājumi;
Dzīvoklis uzreiz pēc kvalitatīva kapitālā remonta – nomainīta jauna elektroinstalācija, mainīti radiatori, iebūvēta jauna santehnika, aprīkota virtuves iekārta. Silts, gaišs, dabīgās gaismas piepildīts dzīvoklis – lielisks pamats Jūsu dzīvesvietai Cēsu novadā.
Dzīvoklis atrodas zaļā un klusā vidē, netālu no vairākām pastaigu vietām un aktīvās atpūtas iespējām brīvā dabā. Tuvākajā apkārtnē – veikali (“LaTS”, “top. ”), Liepas pamatskola, sabiedriskā transporta pieturas, PII “Saulīte”, dzelzceļa stacija “Lode”. Atrašanās vieta starp Cēsīm un Valmieru, ar ērtu savienojamību ar Rīgu, rada lielisku iespēju tiem, kas vēlas mierīgu ikdienas dzīvi tuvu pilsētu iespējām un ērtībām.
Vairāk informācijas, zvanot uz norādīto tālruņa numuru.