🏠 Jaunā Mežaparka 42, Rīga
1 / 34 ▶


































Informācija
€799000
| Tips | maja |
| Adrese | Jaunā Mežaparka iela 42, Rīga, LV-1014 |
| Istabas | 5 |
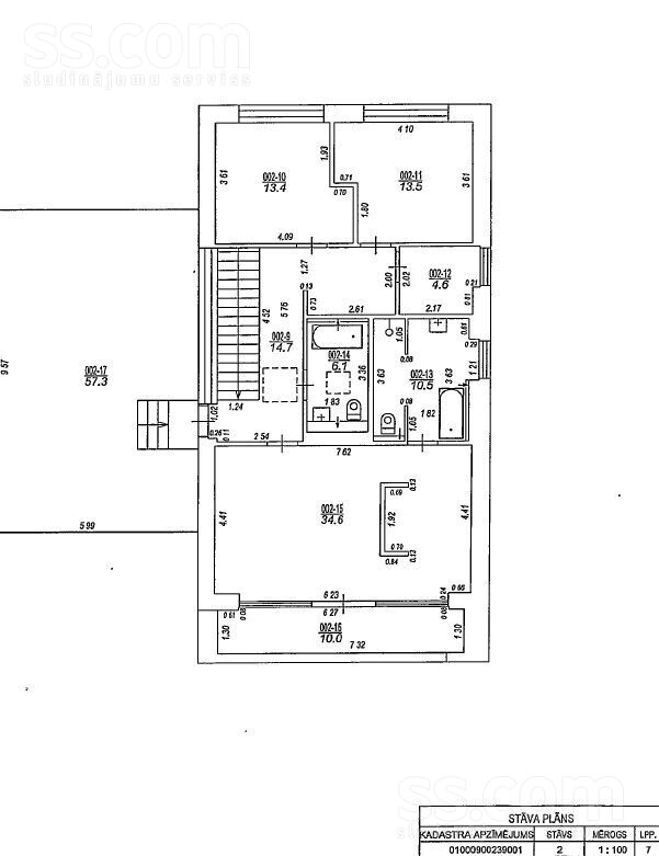
| Platība | 339 m² |
| Zemes platība | 640 m² |
| Stāvu skaits | 2 |
| Ērtības | Blakus ezeram, Dārzs, Garāža, Gāzes katls |
| Koordinātes | 56.993156, 24.155969 ↗ |
| Publicēts | 18.03.2026 14:57 |
| Avots | ss.com |
Attīstītājs pārdod plašu un gaišu dvīņu māju projektā "Mežaparka Rezidences".
Adrese: Jaunā Mežaparka iela 42.
+ Platība (iekštelpu, bez terasēm): 244 m2. Kopējā: 339 m2
+ 5 istabas (4 atsevišķas guļamistabas)
+ 3 vannas istabas ar apsildāmām grīdām un spoguļiem
+ Garāža 2 a/m + saimniecības telpa, kā arī plaša katla telpa (gāzes apkure)
+ Pieguļošā zemes gabala platība 640 m2
+ Iebūvēta virtuve un ietilpīgi skapji
+ Iebūvētā gaisa kondicionēšana katrā istabā
+ Visā mājā uzstādīti gan dienas, gan nakts aizkari ar blackout funkciju
+ Sanmezglos augstvērtīga itāļu dizaina santehnika
+ Pagalma apstādījumiem iebūvēta laistīšanas sistēma
+ Māja būvēta no monolītā dzelzsbetona sienām un keramzītbetona bloku mūra sienām
+ Wicona alumīnija profilu logu rāmji ar trīs stiklu paketēm un diviem selektīviem stikliem, Termix profilu
+ Dzīvojamās telpās griestu augstums 3.00 -3.20m, sanmezglos, koridoros un virtuvju zonās griestu augstums 2.60-2.70m
Dvīņu mājas arhitekts ir Vladimir Arsene ("Westfourth Architecture", ASV). Māja ir mūsdienu arhitektūras piemērs. Tās ekskluzivitāte tiek apliecināta ar vienkāršiem un atturīgiem arhitektoniskajiem risinājumiem, savukārt pārdomātais apdares materiālu pielietojums un detaļu risinājums liecina par augstu kvalitāti.
Ēkas mūsdienīgais interjers un ārtelpas dizaina risinājumi organiski papildina ēkas arhitektūru. Lielie stiklojumi
vizuāli saista iekštelpu ar plašajām āra terasēm. Īpašu noskaņu ēkai piešķir nakts apgaismojums – terašu segumā un pārsegumos iestrādāti gaismas ķermeņi.