🏠 Avotu iela 2, Liepāja un raj., Pāvilosta
1 / 8 ▶








Informācija
€78000
| Tips | maja |
| Adrese | Avotu iela 2, Pāvilosta, Dienvidkurzemes nov., LV-3466 |
| Istabas | 3 |
| Platība | 70 m² |
| Zemes platība | 70 m² |
| Stāvu skaits | 1 |
| Koordinātes | 56.887789, 21.189336 ↗ |
| Publicēts | 18.03.2026 12:30 |
| Avots | ss.com |
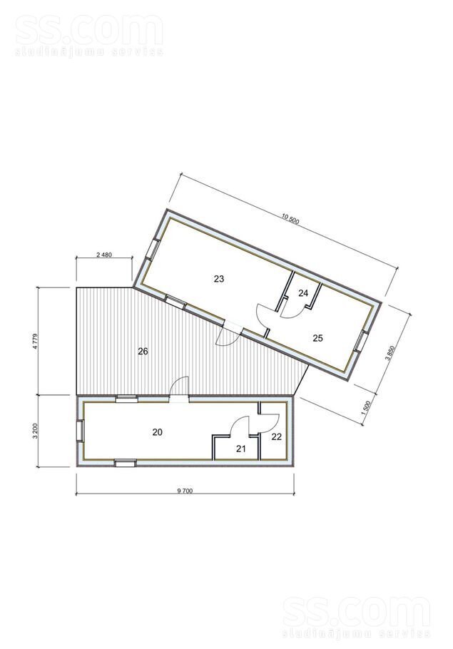
Piedāvājumā divas dzīvošanai gatavas konteinertipa moduļu mājas (komplekts)
Pārdodam divas gandrīz pilnībā aprīkotas konteinertipa moduļu mājas, kuras iespējams izmantot gan atsevišķi, gan savienot vienā funkcionālā dzīvojamā mājā. Aprīkojumā nav iekļautas tikai virtuves mēbeles un virtuves tehnika. Moduļu mājas tika veidotas kā ražotāja demo versija saliekamajām moduļu tipa viesnīcām Skandināvijā. Ražotas Latvijā, Ventspilī.
Platība: 39 m2 un 31 m2
Aprīkojums: Abas mājas ir mēbelētas (līdz par fēnam vannas istabā un gultas veļai guļamistabā) un uzreiz gatavas dzīvošanai . Katrā mājā ir 2 istabas, no kurām viena ir pilnībā aprīkota guļamistaba, sanitārais mezgls ar Grohe santehniku, elektroinstalācija, siltinājums, elektriskā apkure. Vienu no istabām var veidot kā virtuves daļu.
Piegādei gatavas – komplektā ir arī māju uzstādīšanai nepieciešamie skrūvpāļi, mājas ārējais apmetums no akmens flīzēm (ap 100m2), terases materiāli.
Savienojamas – moduļus iespējams uzstādīt kopā, veidojot vienu lielāku dzīvojamo māju, pievienojot terases zonu (skat. māju savienošanas varianta skici pievienotajos attēlos)
Pašizvešana no Pāvilostas