🏠 Cālīši, Jelgava un raj., Jelgava


























Informācija
€209000
| Tips | maja |
| Istabas | 4 |
| Platība | 160 m² |
| Zemes platība | 1.4 ha |
| Stāvu skaits | 2 |
| Ērtības | Boileris, Centrālā apkure, Dārzs, Dīķis, Garāža, Karstais ūdens, Krāsns apkure, Kūts, Pirts, Šķūnis |
| Publicēts | 17.03.2026 19:06 |
| Avots | ss.com |
Daudzfunkcionāla māja Jelgavas pievārtē.
Šis īpašums, kas atrodas uz 1.35 ha zemes gabala, sastāv no praktiskas ģimenes mājas - 160.4 m² + 20 m² stiklotas terases, 45 m² plaša un neapplūstoša pagraba, saimniecības ēkas ar garāžu - 60 m² - visas ēkas ir nodotas ekspluatācijā.
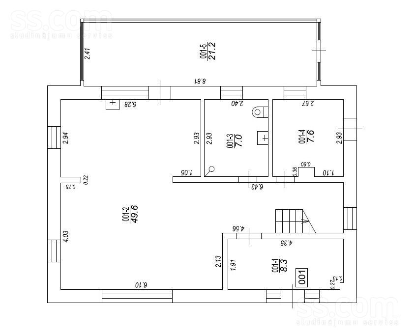
+ Mājas 1. stāva plānojumā izvietots priekšnams, plaša studio tipa viesistaba, kas apvienota ar virtuvi, 1. stāva san-mezgls, katlu telpa un jau minētā terase,
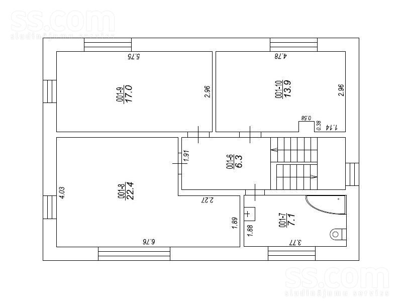
+ Mājas 2. stāvā izvietots vestibils, saimnieka guļamistaba ar iebūvētu gardrobi, 2 izolētas guļamistabas, un 2. stāva san-mezgls ar vannu.
+ Būvniecības laikā lietoti tikai dārgi un kvalitatīvi materiāli,
+ Mājas apkures risinājums ir granulu katls,
+ Pirmajā stāvā ieklātas siltās grīdas, otrajā stāvā - radiatori,
+ Zemes līmenis, uz kura atrodas māja ir paaugstināts,
+ Īpašumā ir vietējais ūdens - 60 m spice un vietējā kanalizācija - nosēd-aka (3 akas, pa 3 grodiem katra),
+ Pie mājas ir iekopts dārzs, aveņu lauks un zemenes,
+ Uz īpašuma atrodas dīķis, plaša siltumnīca un pārvietojama pirts,
+ Īpašums iežogots ar 3D paneļu žogu ar elektriskajiem vārtiem un pa perimetru, uzstādīta arī apsardzes signalizācija,
+ Pārdošanas cenā ir iekļautas pilnīgi visas mēbeles, sadzīves tehnika, un visa pārējā kustamā manta,
+ Īpašums atrodas potenciālā vietā, ar biznesa iespējām, blakus arī sabiedriskā transporta pietura.
+ Mani sauc Andris, un es esmu nekustamā īpašuma aģents, kuram īpašnieks uzticas, tāpēc, aicinu Tevi - sazināties ar mani, lai vienotos par īpašuma apskati klātienē.
+ Piedāvājam atbalstu hipotekārā kredīta noformēšanā visās Latvijā populārākajās kredītiestādēs, kā arī nodrošinām sertificēta vērtētāja pakalpojumus, lai īpašuma iegādes darījums Jums būtu maksimāli drošs process.
RUS:
Твой семейный дом всего в 6 минутах от Елгавы.
Этот объект недвижимости расположен на участке площадью 1, 35 га и включает в себя практичный семейный дом 160, 4 м² + 20 м² застеклённая терраса, 45 м² просторный и не затопляемый подвал, хозяйственная постройка с гаражом 60 м² все строения сданы в эксплуатацию.
+ На 1 этаже дома предусмотрены: прихожая, просторная гостиная студийного типа, совмещённая с кухней, санузел, котельная и уже упомянутая терраса,
+ На 2 этаже: холл, хозяйская спальня с встроенной гардеробной, 2 изолированные спальни и санузел с ванной.
+ В строительстве использовались только дорогие и качественные материалы,
+ Отопление дома обеспечивается пеллетным котлом,
+ На первом этаже тёплые полы, на втором радиаторы,
+ Уровень земли, на котором расположен дом, приподнят,
+ В собственности местная вода (скважина 60 м) и местная канализация (отстойник: 3 колодца по 3 кольца),
+ Возле дома благоустроенный сад, малинник и клубника,
+ На участке пруд, просторная теплица и мобильная баня.
+ Участок огорожен 3D панельным забором с электрическими воротами, а по периметру установлена охранная сигнализация,
+ В цену продажи включена вся мебель, бытовая техника и прочее движимое имущество,
+ Участок расположен в перспективном месте с возможностью ведения бизнеса, pядом также находится остановка общественного транспорта.
+ Меня зовут Андрис, я агент по недвижимости, которому доверяет владелец, поэтому приглашаю вас связаться со мной для организации очного осмотра объекта.
+ Предлагаем помощь в оформлении ипотечного кредита во всех популярных кредитных учреждениях Латвии, а также обеспечиваем услуги сертифицированного оценщика, чтобы процесс покупки был максимально безопасным.
ENG:
Your family home just 6 minutes away from Jelgava.
This property, situated on 1.35 hectares of land, consists of a practical family house 160.4 m² + 20 m² glazed terrace, a 45 m² spacious, flood-free basement, and an outbuilding with garage 60 m² all buildings have been officially commissioned.
+ The ground floor layout includes an entrance hall, a spacious studio-type living room combined with the kitchen, a bathroom, a boiler room, and the aforementioned terrace,
+ The second floor features a hallway, a master bedroom with a built-in wardrobe, 2 separate bedrooms, and a bathroom with a bathtub.
+ Only high-quality, expensive materials were used in construction,
+ Heating is provided by a pellet boiler,
+ Underfloor heating is installed on the ground floor, and radiators on the second floor,
+ The house is built on elevated ground level,
+ The property has local water (60 m borehole) and local sewage (sedimentation tank 3 wells, each with 3 rings),
+ The garden is landscaped, with raspberry fields and strawberries,
+ On the property, there is a pond, a spacious greenhouse, and a mobile sauna.
+ The property is fenced with 3D panel fencing and electric gates, with a security alarm system installed around the perimeter,
+ The sale price includes all furniture, household appliances, and all other movable property,
+ The property is in a promising location with business potential, public transport stop is also nearby.
+ My name is Andris, and I’m a real estate agent trusted by the owner I invite you to contact me to arrange a viewing.
+ We offer assistance with mortgage processing at all major credit institutions in Latvia, as well as certified property valuation services to ensure a safe purchasing process.