Saulkalnes 18, Rīga, Ziepniekkalns














Informācija
€190000
| Tips | telpa |
| Adrese | Saulkalnes iela 18, Rīga, LV-1058 |
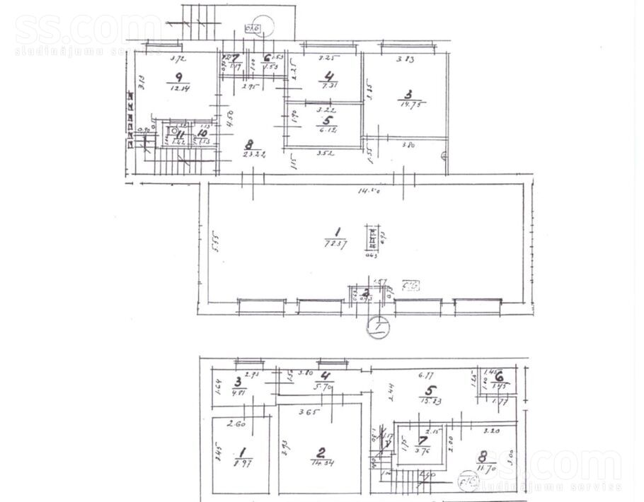
| Platība | 214 m² |
| Koordinātes | 56.913263, 24.100015 ↗ |
| Publicēts | 17.03.2026 18:51 |
| Avots | ss.com |
Piedāvājam iegādāties plašas komerctelpas ēkas 1. stāvā Ziepniekkalnā, ideāli piemērotas veikalam, salonam vai citai komerciālai darbībai. Telpas nodrošina ērtu piekļuvi, lielisku redzamību un ērtu darbību ikdienā.
Kopējā pardodamā platība 214 m².
Pirmā stāva kopējā telpu platība 147 m², pagrabtelpu platība 66 m².
Īpašuma priekšrocības - ērta atrašanās vieta, blakus skolas, pakalpojumu sniedzēji, sabiedriskais transports. Divas ieejas – galvenā no ēkas fasādes un papildu ieeja no iekšpagalma puses. Iespēja novietot automašīnas pie ēkas.
Telpas ir gaišas, vairāki izolēti kabineti un plašas pagraba telpas ar saunu.
Izdevīgs investīciju piedāvājums.
.
We offer spacious commercial premises for sale on the 1st floor of a building in Ziepniekkalns, ideally suited for a shop, salon, or other commercial activity. The premises provide convenient access, excellent visibility, and ease of daily operation. The total area for sale is 214 m², with 147 m² on the 1st floor and 66 m² in the basement.
The property enjoys a convenient location close to schools, service providers, and public transport, with parking available near the building. Two entrances - the main one from the front of the building and an additional entrance from the courtyard. The rooms are bright, with several separate offices and a spacious basement with a sauna.
This is an attractive investment opportunity.
.
Предлагаются к продаже просторные коммерческие помещения на 1-м этаже здания в Ziepniekkalns, идеально подходящие для магазина, салона или другой коммерческой деятельности. Помещения обеспечивают удобный доступ, отличную видимость и комфортное ежедневное использование.
Общая площадь составляет 214 м², из которых 147 м² на 1-м этаже и 66 м² в подвале.
Объект удобно расположен рядом со школами, сервисными предприятиями и общественным транспортом, есть возможность парковки у здания. Два входа – главный с фасада здания и дополнительный со стороны внутреннего двора. Помещения светлые, несколько изолированных кабинетов и просторные подвальные помещения с сауной.
Выгодное инвестиционное предложение.