Strēlnieku 2a, Rīga, centrs
1 / 10 ▶










Informācija
€1000000
| Tips | telpa |
| Adrese | Strēlnieku iela 2A, Rīga, LV-1010 |
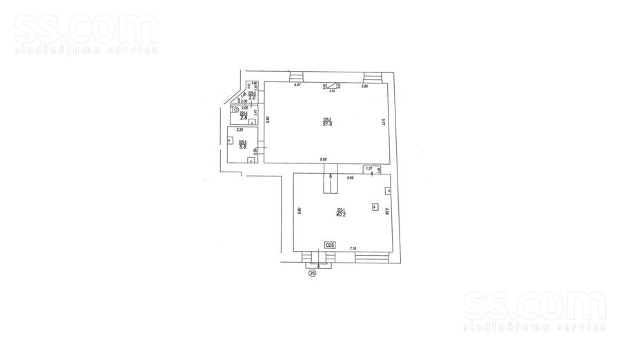
| Platība | 102 m² |
| Koordinātes | 56.958819, 24.106942 ↗ |
| Publicēts | 15.04.2026 13:16 |
| Avots | ss.com |
Pārdošanā bāra, kafejnīcas telpas lieliskā vietā, Strēlnieku ielā 2a starp Elizabetes ielu un Alberta ielu
Kopējā platība: 102 m²
Plānojums - divas klientu zāles, virtuve, WC
Centrālā apkure
Optiskais internets
Kondicionēšanas sistēma
Mūsdienīgs interjers (Jūgenstilā)
Mūsdienīgs apgaismojums
Signalizācija/videono vērošana 24/7
Ārpusē Iespēja izvietot plašu terasi priekš klientiem
Rīgas satiksmes maksas stāvieta uz Strēlnieku ielas
Продается помещение для бара, кафе в отличном месте, улица Strelnieku 2A
между улицами Elizabetes и Alberta
Общая площадь: 102 м²
Планировка: два зала для посетителей, кухня, WC
Центральное отопление
Оптический интернет
Система кондиционирования
Современный интерьер (югенстиль)
Современное освещение
Круглосуточная сигнализация/видеонаб людение
Снаружи Возможность просторной террасы для клиентов
Платная парковка на улице Strelnieku
For sale bar, café premises in a great location, Strelnieku Street 2A between Elizabetes Street and Alberta Street
Total area: 102 m²
Layout: two customer lounges, kitchen, WC
Central heating
Optical internet
Air-conditioning system
Modern interior (Jugendstil)
Modern lighting
24/7 alarm/video surveillance
Possibility of a spacious terrace for customers
City parking on Strelnieku Street