🏢 Kristapa 2, Rīga
1 / 26 ▶


























Informācija
€170180
| Tips | dzivoklis |
| Adrese | Kristapa iela 2, Rīga, LV-1083 |
| Istabas | 3 |
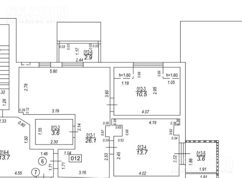
| Platība | 61 m² |
| Stāvs | 2/2 |
| Sērija | Renov. |
| Mājas tips | Koka |
| Ērtības | Balkons |
| Koordinātes | 56.941923, 24.057942 ↗ |
| Publicēts | 14.04.2026 14:21 |
| Avots | ss.com |
Attīstītājs ir realizējis kārtējo projektu – renovējis ēku vēstures cienītājiem. Pilnībā atjaunota viena no pirmajām jūgendstila koka ēkām Rīgā, kas celta pēc arhitekta Alfrēda Ašenkampfa projekta 1904. gadā. Tā veidota kā kompromiss starp funkcionalitāti un estētiku. Alfrēds Ašenkampfs ir viens no jūgendstila aizsācējiem Rīgā.
Vietējie šo ēku vēsturiski dēvēja par Kapteiņa namu, jo ēkas otrā stāva apaļais logs simbolizē visu redzošo aci, no kuras gaisma spīd kā no bākas.
Atjaunošanas procesā saglabāti vēsturiskie elementi. Labiekārtots pagalms ar iespēju iegādāties stāvvietu. Lielākajai daļai dzīvokļu ir terases vai balkoni. Dzīvokļi ir sadalīti dzīvokļu īpašumos, un zeme ir īpašumā.
Šis dzīvoklis sastāv no studio tipa viesistabas, kura apvienota ar virtuvi, sanmezgla ar dušu, 2 izolētām guļamistabām, terases.
Kopumā būs pieejami 2–4 istabu dzīvokļi. Visi dzīvokļi tiek piedāvāti ar pilnu apdari, kā arī ar pabeigtiem un iekārtotiem sanitārajiem mezgliem.
Ēkai ir atjaunota fasāde un jumts, nomainītas visas komunikācijas. Katram dzīvoklim ir savs individuāls apkures skaitītājs, kas ļauj regulēt siltumu pēc savām vēlmēm un palīdz ietaupīt uz apkures izmaksām.
The developer has completed another projectthis time, a building for history enthusiasts. One of the first Art Nouveau wooden buildings in Riga has been fully restored. It was originally built in 1904 based on a design by architect Alfrēds Ašenkampf. The building is a balance between functionality and aesthetics. Alfrēds Ašenkampf is one of the pioneers of Art Nouveau in Riga.
Locals have historically referred to this building as the "Captain’s House" because the round window on the second floor symbolizes the all-seeing eye, shining like a beacon.
During the restoration process, historical elements were preserved. The courtyard has been landscaped, offering the opportunity to purchase a parking space and enjoy a green area. Most apartments have terraces or balconies. The apartments are divided into individual property units, and the land is privately owned.
This apartment consists of a studio-type living room combined with a kitchen, a bathroom with a shower, 2 separate bedrooms, and a terrace.
In total, 2- to 4-room apartments will be available. All apartments are offered with full interior finishing, including fully completed and furnished sanitary facilities.
The building’s facade and roof have been restored, and all utilities have been replaced. Each apartment has an individual heating meter, allowing residents to adjust the temperature according to their preferences and save on heating costs.