🏠 Jelgavas 33a, Kuldīga un raj., Kuldīga
1 / 10 ▶










Informācija
€87000
| Tips | maja |
| Adrese | Jelgavas iela 33A, Kuldīga, Kuldīgas nov., LV-3301 |
| Istabas | 4 |
| Platība | 120 m² |
| Zemes platība | 800 m² |
| Stāvu skaits | 2 |
| Ērtības | Garāža |
| Koordinātes | 56.964074, 21.974123 ↗ |
| Publicēts | 14.04.2026 11:20 |
| Avots | ss.com |
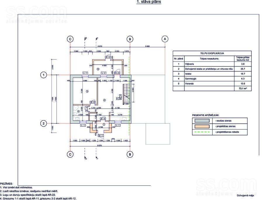
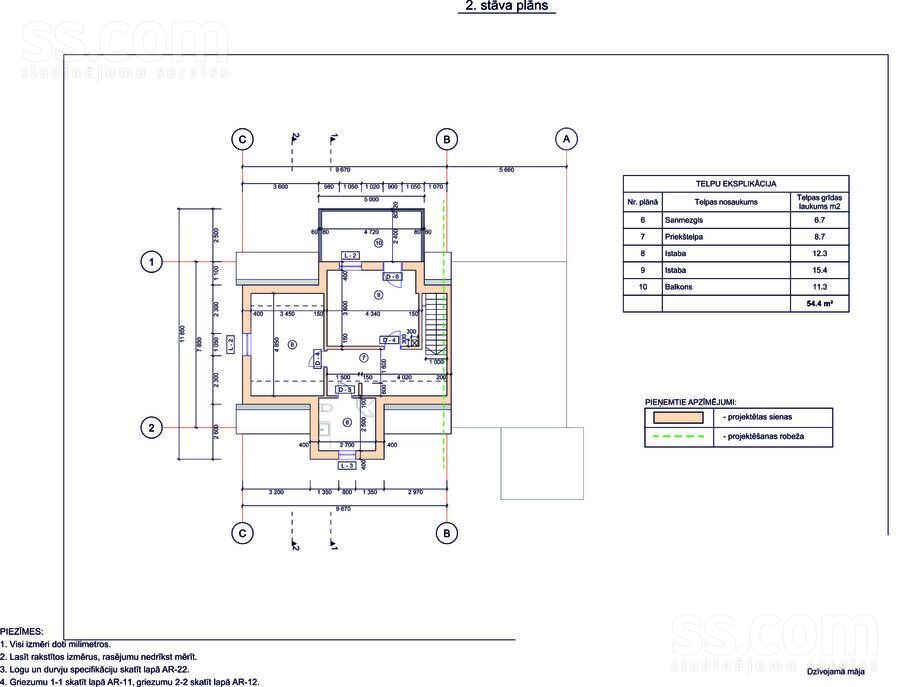
Iespēja iekārtot klusu un mierīgu dzīvesvietu, nopērkot nekustamo īpašumu, kas atrodas labā vietā Kuldīgas vecpilsētā – 5 minūšu gājienā no Rātslaukuma. Īpašums sastāv no renovējama divstāvu dzīvokļa divu dzīvokļu mājā, kas celta 1840. gadā, no palīgēkas un diviem zemes gabaliem: mājas priekšpusē un aiz mājas. Zemes gabalos ir iespējams iekārtot atsevišķu dārzu un atpūtas zonu. Ir izstrādāts pārbūves projekts un saņemta būvatļauja. Īstenojot projektu, tiek iegūta dzīvojamā platība aptuveni 120 m2. Ir iespējams saņemt pašvaldības līdzfinansējumu ēkas rekonstrukcijai. Mājai ir veikti priekšdarbi tās atjaunošanas uzsākšanai - ir veikti iekštelpu demontāžas darbi. Dzīvoklim ir pilsētas ūdensvads un kanalizācija, elektrība. Māja neatrodas pie ielas, bet ir dziļāk aiz dārziem, klusā vietā. Lūdzu zvanīt uz otro telefona Nr.