🏠 Rītausmas iela 1, Mārupe, Rīgas rajons, Mārupes pag.
1 / 27 ▶



























Informācija
€320000
| Tips | maja |
| Adrese | Rītausmas iela 1, Mārupe, Mārupes nov., LV-2167 |
| Istabas | 4 |
| Platība | 168 m² |
| Zemes platība | 318 m² |
| Stāvu skaits | 2 |
| Ērtības | Dārzs, Garāža, Karstais ūdens |
| Koordinātes | 56.889660, 24.046163 ↗ |
| Publicēts | 13.04.2026 18:17 |
| Avots | ss.com |
Pārdod elegantu rindu māju Mārupē
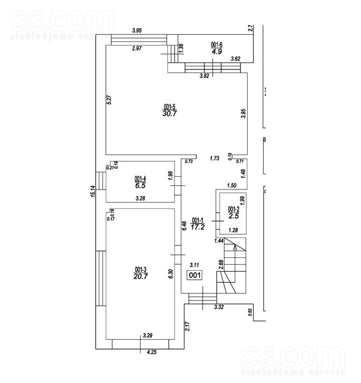
Piedāvājam jaunu un modernu mājas sekciju ar funkcionālu un pārdomātu plānojumu, kā arī dizaina mēbelēm. Kopējā platība ir 167, 5 m², no kuriem terases un balkoni veido 22, 5 m².
1. stāvs ar 3, 70 m augstiem griestiem (82, 5 m²):
Viesistaba ar virtuves iekārtu un tehniku – tvaika nosūcēju, elektrisko plīti, ledusskapi un cepeškrāsni (30, 7 m²)
Tualete ar iebūvētu sēdpodu (2, 5 m²)
Tehniskā telpa (6, 5 m²)
Garāža ar automātiskajiem vārtiem un pulti (20, 7 m²)
Terase (4, 9 m²)
Priekštelpa (17, 2 m²)
2. stāvs ar 3, 0 m augstiem griestiem (85, 0 m²):
Dzīvojamā istaba 1 (13, 1 m²)
Dzīvojamā istaba 2 (13, 3 m²)
Guļamistaba 3 (13, 7 m²)
Vannas istaba ar iebūvētu sēdpodu un vannu (5, 6 m²)
Tualete ar iebūvētu sēdpodu un dušu (2, 8 m²)
Divi balkoni ar 7, 3 m² un 10, 3 m² platību
Priekštelpa (18, 9 m²)
Mājas ir būvētas no gāzbetona blokiem ar 150 mm siltinājumu un dzelzsbetona pārseguma paneļiem, un tās balstās uz monolītiem dzelzsbetona pamatiem. Siltumu nodrošina Ariston un Panasonic gaiss–ūdens siltumsūkņi, kā arī siltās grīdas sistēma. Telpas ir aprīkotas ar rekuperatoriem. Papildu ventilācijai, kā arī skaņas un siltuma izolācijai izmantoti PVC logi un durvis ar 50 mm trīskāršajiem pakešu stikliem (3 stikli, 2 selektīvie). Mājā ir pieejama centralizētā ūdensapgāde un kanalizācija, kā arī izbūvēts jauns elektrības pieslēgums.
Siltuma un skaņas izolācijai izmantota PAROC akmens vate – 100 mm biezumā 1. stāvā un 50 mm biezumā 2. stāvā. Pirmā stāva izlīdzinošā kārta ir armēts betons 60 mm biezumā ar grīdas apkuri un flīžu segumu, savukārt 2. stāvā – 50 mm ar parketa segumu dzīvojamajās telpās. Ārsienas ir siltinātas ar 150 mm biezu akmens vates slāni, bet jumts – ar 400 mm slāni.
Pateicoties izmantotajiem materiāliem, mājai ir piešķirta A+ energoefektivitātes klase, un ugunsdrošības risinājumi atbilst būvnormatīvu prasībām.
Teritorija ir pilnībā labiekārtota – bruģēti piebraucamie ceļi, ainavu arhitektes veidots dārzs un apzaļumota vide ar zālienu un apstādījumiem, kā arī automātiskie iebraukšanas vārti drošībai un ērtībai. Klusa un zaļa apkārtne – māja atrodas sakoptā privātmāju rajonā ar attīstītu infrastruktūru: veikals, bērnudārzs un sabiedriskā transporta pietura pieejami 5 minūšu attālumā. Līdz Rīgas centram – vien 15 minūtes.
Lai uzzinātu cenu un vienotos par apskates laiku, lūdzu, zvaniet vai rakstiet uz norādīto kontaktu.
ENG
Elegant terraced house for sale in Mārupe
We offer a new and modern house section with a functional and well-thought-out layout, as well as designer furniture. The total area is 167.5 m², of which terraces and balconies make up 22.5 m².
1st floor with 3.70 m high ceiling (82.5 m²):
Living room with kitchen equipment and appliances – extractor hood, electric stove, refrigerator and oven (30.7 m²)
Toilet with built-in toilet (2.5 m²)
Technical room (6.5 m²)
Garage with automatic gate and remote control (20.7 m²)
Terrace (4.9 m²)
Entrance hall (17.2 m²)
2nd floor with 3.0 m high ceiling (85.0 m²):
Living room 1 (13.1 m²)
Living room 2 (13.3 m²)
Bedroom 3 (13.7 m²)
Bathroom with built-in toilet and bathtub (5.6 m²)
Toilet with built-in toilet and shower (2.8 m²)
Two balconies with 7.3 m² and 10.3 m² area
Entrance hall (18.9 m²)
The houses are built of aerated concrete blocks with 150 mm insulation and reinforced concrete floor panels, and they are based on monolithic reinforced concrete foundations. Heat is provided by Ariston and Panasonic air-to-water heat pumps, as well as a heated floor system. The rooms are equipped with recuperators. For additional ventilation, as well as sound and heat insulation, PVC windows and doors with 50 mm triple glazing (3 glasses, 2 selective) are used. The house has centralized water supply and sewage, as well as a new electricity connection.
PAROC stone wool is used for heat and sound insulation - 100 mm thick on the 1st floor and 50 mm thick on the 2nd floor. The first floor leveling layer is reinforced concrete 60 mm thick with underfloor heating and tiled flooring, while the 2nd floor is 50 mm with parquet flooring in the living areas. The exterior walls are insulated with a 150 mm layer of rock wool, and the roof is insulated with a 400 mm layer.
Thanks to the materials used, the house has been awarded an A+ energy efficiency class, and fire safety solutions comply with the requirements of building codes.
The territory is fully landscaped - paved driveways, a garden designed by a landscape architect and a green environment with lawns and greenery, as well as automatic entrance gates for safety and convenience. Quiet and green surroundings - the house is located in a well-kept private housing area with developed infrastructure: a shop, kindergarten and public transport stop are available within 5 minutes. To the center of Riga - only 15 minutes.
To find out the price and arrange a viewing time, please call or write to the contact provided.
RUS
Элегантный таунхаус на продажу в Марупе
Мы предлагаем новый современный дом с функциональной и продуманной планировкой, а также дизайнерской мебелью. Общая площадь составляет 167, 5 м², из которых 22, 5 м² приходится на террасы и балконы.
1-й этаж с потолком высотой 3, 70 м (82, 5 м²):
Гостиная с кухонным оборудованием и бытовой техникой – вытяжка, электрическая плита, холодильник и духовка (30, 7 м²)
Туалет со встроенным унитазом (2, 5 м²)
Техническое помещение (6, 5 м²)
Гараж с автоматическими воротами и дистанционным управлением (20, 7 м²)
Терраса (4, 9 м²)
Прихожая (17, 2 м²)
2-й этаж с потолком высотой 3, 0 м (85, 0 м²):
Гостиная 1 (13, 1 м²)
Гостиная 2 (13, 3 м²)
Спальня 3 (13, 7 м²)
Ванная комната со встроенным унитазом и ванной (5, 6 м²)
Туалет со встроенным унитазом и душем (2, 8 м²)
Два балкона площадью 7, 3 м² и Площадь 10, 3 м²
Прихожая (18, 9 м²)
Дома построены из газобетонных блоков с теплоизоляцией 150 мм и железобетонными перекрытиями, на монолитных железобетонных фундаментах. Отопление обеспечивается тепловыделяющими насосами типа воздух-вода Ariston и Panasonic, а также системой подогрева пола. Помещения оборудованы рекуператорами. Для дополнительной вентиляции, а также звуко- и теплоизоляции используются пластиковые окна и двери с тройным остеклением 50 мм (3 стекла, 2 селективных). Дом имеет централизованное водоснабжение и канализацию, а также новое подключение к электросети.
Для тепло- и звукоизоляции используется каменная вата PAROC – 100 мм на 1-м этаже и 50 мм на 2-м этаже. Выравнивающий слой первого этажа – железобетон толщиной 60 мм с подогревом пола и плиткой, а 2-й этаж – 50 мм с паркетным полом в жилых помещениях. Внешние стены утеплены слоем минеральной ваты толщиной 150 мм, а крыша – слоем толщиной 400 мм.
Благодаря использованным материалам дом получил класс энергоэффективности A+, а противопожарные решения соответствуют требованиям строительных норм.
Территория полностью благоустроена – мощеные подъездные пути, сад, спроектированный ландшафтным архитектором, и зеленая зона с газонами и растениями, а также автоматические въездные ворота для безопасности и удобства. Тихая и зеленая обстановка – дом расположен в благоустроенном частном жилом районе с развитой инфраструктурой: магазин, детский сад и остановка общественного транспорта находятся в 5 минутах езды. До центра Риги – всего 15 минут.
Чтобы узнать цену и договориться о времени просмотра, пожалуйста, позвоните или напишите по указанному контактному адресу.