🏢 Rūpniecības 48, Rīga
1 / 24 ▶
























Informācija
€240000
| Tips | dzivoklis |
| Adrese | Rūpniecības iela 48, Rīga, LV-1045 |
| Istabas | 3 |
| Platība | 60 m² |
| Stāvs | 2/2 |
| Sērija | Jaun. |
| Mājas tips | Ķieģeļu-paneļu |
| Ērtības | Parkošanas vieta |
| Koordinātes | 56.966704, 24.105168 ↗ |
| Publicēts | 02.04.2026 13:06 |
| Avots | ss.com |
Divstāvīgs dzīvoklis ar 3 vannas istabām un savu autostāvvietu.
Pērkot šo īpašumu Jūs iegādājaties iespēju dzīvot komfortā.
Prestižā lokācijā, jaunceltnē ir iespēja iegādādiet 2 stāvīgu dzīvokli ar pilno apdari. Izmantoti tikai augstākās kvalitātes materiāli.
Modernā namā ar savu sporta zāli, savu autostāvvietu, slēgtiem bērnu laukumiem, velo novietnēm, viss Jūsu komfortam un augstam dzīves līmenim.
Pa visu dzīvokli ir izklātas parketa grīdas, jaunie trīskāršie logi, savs gāzes katls, regulējamie radiatori, augstie griesti, laba skaņas un siltuma izolācija.
Otrajā stāvā dzīvoklī ir 2 izolētas maza izmēra guļamistabas un 2 vannas istabas ar dušas kabīni un-WC kopā. Un vēl papildus ir 3 viesu tualete pirmajā stāvā.
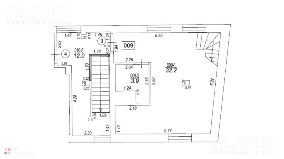
Dzīvokļa plānojums:
ienākot ir 32.2 m²liela dzīvojamā istaba apvienota ar virtuvi
lejā ir WC telpa 3.9 m²
izolēta guļamistaba otrajā stāvā 6.3m²
otra izolēta guļamistaba otrajā stāvā 6.4 m² (istabas dzīvē ir lielāka izmēra bet pateicoties slīpajam jumtam kvadrāti netiek ieskaitīti oficiālajos mērījumos.
tālāk seko kāpnes, kuras ved atpakaļ uz pirmo stāvu.
Skats no logiem paveras uz skaistiem namiem, labiekārtotu teritoriju. Apkārtne ir ļoti
klusa un mierīga.
Zemi komunālie maksājumi.
Apsaimniekošana 1 EUR par kv. m.
Dzīvoklis pārdodas bez mēbelēm. Bilde ar mē Ar iebūvētu virtuves tehniku.
Visu pārējo varat veidot un iekārtot pēc savas gaumes.
Skaistas kāpņu telpas, veramas ar čipu. Ir lifts.
Ekselenta infrastruktūra un apkaime: tuvumā saloni, veikali, sporta centrs, ērta piekluve pilsētas centram.
Dzīvoklis ir reģistrēts kā dzīvokļa īpašums un zeme ir īpašumā.
Projektā pieejami vairāki dzīvokļu varianti ar dažādiem plānojumiem un platībām.
Zvaniet man un es ar prieku Jums parādīšu Jūsu jaunās mājas.
Двухэтажная квартира с 3 ванными комнатами и собственной автостоянкой.
Покупая это имущество, Вы приобретаете возможность жить в комфорте.
В престижной локации, новостройке есть возможность приобрести 2-этажную квартиру с полной отделкой. Использованы только высококачественные материалы.
В современном доме со своим спортзалом, своей автостоянкой, закрытыми детскими площадками, все для вашего комфорта и высокого уровня жизни.
По всей квартире расстелены паркетные полы, новые тройные окна, собственный газовый котел, регулируемые радиаторы, высокие потолки, хорошая звуковая и теплоизоляция.
На втором этаже в квартире 2 изолированные спальни малого размера и 2 ванные комнаты с душевой кабиной и-WC вместе. А еще дополнительно есть 3 гостевых туалета на первом этаже.
Планировка квартиры:
При входе жилая комната площадью 32.2 m ² объединена с кухней
ниже расположена комната WC 3.9 m ²
изолированная спальня на втором этаже 6.3 m ²
Вторая изолированная спальня на втором этаже 6.4 м ² (в реальной жизни комнаты noбольше размера, но благодаря наклонной крыше квадраты не засчитываются в официальные измерения.
далее следует лестница, ведущая на первый этаж.
Вид из окон открывается на красивые дома, благоустроенную территорию. Окрестности очень
тихo и спокойнo.
Низкие коммунальные платежи.
Обслуживание 1 EUR за кв. м.
Квартира продается без мебели.
Все остальное вы можете сделать и устроить по своему вкусу.
Красивые подъезды, распахиваются чипом. Есть лифт.
Инфраструктура и район отличнoе: вблизи салоны, магазины, спортивный центр.
Квартира зарегистрирована как квартирная собственность и земля находится в собственности.
В проекте доступно несколько вариантов квартир с различными планировками и площадями.
Звоните мне, и я с радостью покажу вам ваш новый дом.
A two-story apartment with 3 bathrooms and its own car park.
When you buy this property, you buy the ability to live in comfort.
In a prestigious location, the new building has the option of buying a 2-storey flat with its full finish. Only premium materials have been used.
In a modern home with its own gym, its own car park, enclosed children's grounds, velocity stands, all for your comfort and high standard of living.
Parquet floors, the new triple windows, its own gas boiler, adjustable radiators, high ceilings, good sound and heat insulation are lined up throughout the apartment.
On the second floor, the apartment has 2 insulated small-size bedrooms and 2 bathrooms with a shower room and a-WC combined. And there's an extra 3 guest toilet on the ground floor.
Layout of the apartment:
There's a 32.2 m ² living room combined with a kitchen on the first floor
Separate WC space 3.9 m ²
Isolated bedroom on second floor, 6.3 m ²
Second Isolated bedroom on the second floor at 6.4 m ² (Bedrooms are larger in size in real life but thanks to the oblique roof, square meters aren't counted in official measurements.