🏢 Skudru 39, Rīga
1 / 8 ▶








Informācija
€54800
| Tips | dzivoklis |
| Adrese | Skudru iela 39, Rīga, LV-1073 |
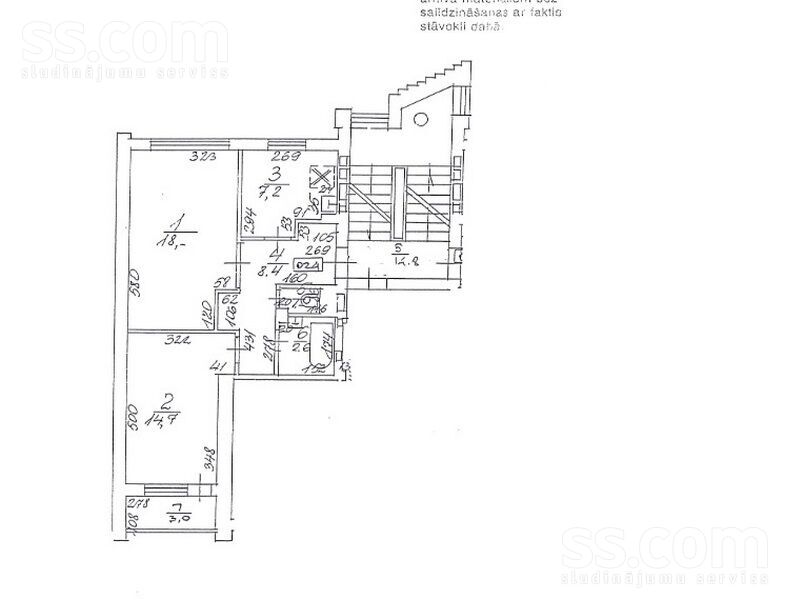
| Istabas | 2 |
| Platība | 55 m² |
| Stāvs | 3/5 |
| Sērija | 103. |
| Mājas tips | Ķieģeļu |
| Ērtības | Lodžija, Parkošanas vieta |
| Koordinātes | 56.933836, 24.191211 ↗ |
| Publicēts | 01.04.2026 14:47 |
| Avots | ss.com |
Pārdodu siltu un mājīgu 54.9 m² dzīvokli privātu māju rajonā Dārziemā.
Dzīvoklis ir remonta stadijā un tā ir iespēja pašiem realizēt savas ieceres dzīvokļa remontā un dizainā.
3 stāvs
2 izolētas istabas (18m² un 14.7 m²)
Tualete un vannas istaba ir atsevišķi.
Lodžija (3m²).
Griestu augstums 2.5 m.
Istabā pie lodžijas ir veikta koka loga restaurācija un ielikti jauni stikli. Otrā istabā un virtuvē ir plastikāta logi.
Ir uzlikti jauni radiatori.
Abos stāvvados uzlikti jauni ievadi un skaitītāji.
Elektrībai ir nomainīts ieejas jaudas kabelis.
Koridora plānojumā ir 3 vietas iebūvējamiem skapjiem.
Dzīvoklim ir metāla durvis.
Ēkas ārējās gala sienas ir siltinātas. Ēku apsaimnieko dzīvokļu īpašnieku kooperatīva sabiedrība.
Ķieģeļu mūra māja, uzcelta 1990.gadā, atrodas klusā privātmāju rajonā un ar plašu pagalmu, kur ir vieta automašīnai (ir atļauja).
Ieeja kāpņutelpā ar koda slēdzeni. Dzīvoklim lietošanā ir arī šķūnītis pagarbtelpā, kas ir tīrs un var tikt lietots dažādu retāk nepieciešamu mantu uzglabāšanai.
Apkārtnē ir laba infrastruktūra: sabiedriskā transporta pieturas uz Dārzciema ielas, Ilūkstes ielas, Saharova ielas, Lubānas ielas. Elektroauto lietotājiem uz Skudru ielas ir Elektrum uzlādes stacija. Tuvumā skola, bērnudārzs, veselības iestāde, TC Ozols , TC Akropole , LIDL u. c.
Теплая и уютная квартира в отличном месте в Дарзиеме, 54, 9 м² .
Квартира находится на этапе ремонта, и это возможность воплотить ваши идеи по ремонту и дизайну.
3 этаж
2 изолированные комнаты (18m² un 14.7 m²),
туалет и ванная раздельные
лоджия (3м²)
Высота потолков 2, 5 м.
Установлены новые радиаторы
В обоих стояках установлены новые вводы и счетчики
По электричеству заменен вводной силовой кабель
В комнате возле лоджии отреставрировано деревянное окно и установлены новые стекла. Во второй комнате и кухне пластиковые окна.
В коридорной планировке предусмотрено 3 места для встроенных шкафов.
Наружные стены здания утеплены. Домом управляет кооператив собственников квартир.
Кирпичный дом, построенный (введен в эксплуатацию) в 1990 году, расположен в районе частных домов и имеет большой двор с местом для автомобиля (с разрешением).
Вход на лестничную клетку с кодовым замком. Есть сарай в подвале, который чист и может быть использован для хранения различных менее часто используемых предметов.
В районе хорошая инфраструктура: остановки общественного транспорта на улицах Дарзциема, Илуксте, Сахарова, Лубанас. На улице Скудру расположена зарядная станция Elektrum для владельцев электромобилей. Рядом школа, детский сад, медучреждение, ТЦ Озолс, ТЦ Акрополь, ЛИДЛ и др.
Warm and cozy apartment, 54.9 m², under repair (it is an opportunity to realize your own ideas), in a great location in Dārziems, on the 3rd floor of the building.
The apartment has 2 isolated rooms (18m² un 14.7 m²). Toilet and bathroom are separate. The apartment has a loggia (3m²). Ceiling height 2.5 m. In the room near the loggia, the wooden window has been restored and new glass has been installed. The second room and the kitchen have plastic windows. New radiators have been installed. There are 3 places for built-in wardrobes in the corridor layout. The external walls of the building are insulated. The building is managed by the cooperative society of apartment owners.
Entrance to the stairwell with a code lock. The apartment also has a shed in the utility room, which is clean and can be used for storing various less frequently needed items.
There is a good infrastructure in the area: public transport stops on Dārzciema Street, Ilukste, Sakharova Street, Lubānas Street. There is an Elektrum charging station for electric car users on Skudru Street.
Nearby is a school, kindergarten, health facility, TC Ozols, TC Akropole, LIDL, etc.