Krāsotāju 6, Rīga
1 / 17 ▶

















Informācija
€51000
| Tips | birojs |
| Adrese | Krāsotāju iela 6, Rīga, LV-1009 |
| Platība | 85 m² |
| Stāvs | 1/3 |
| Kadastra Nr. | 01009065999 |
| Koordinātes | 56.953925, 24.143192 ↗ |
| Publicēts | 01.04.2026 14:52 |
| Avots | ss.com |
Pārdošanā 85 m² komerctelpas puspagraba stāvā ar logiem uz ielas Pusi.
Īpašums reģistrēts kā neapdzīvojamā telpa, telpu grupa - veikals. Šobrīd telpas iekārtotas kā deju zāle, bet var izmantot arī kā kafejnicu, frizētavu, veikalu, darbnīcu vai cita veida komercdarbībai.
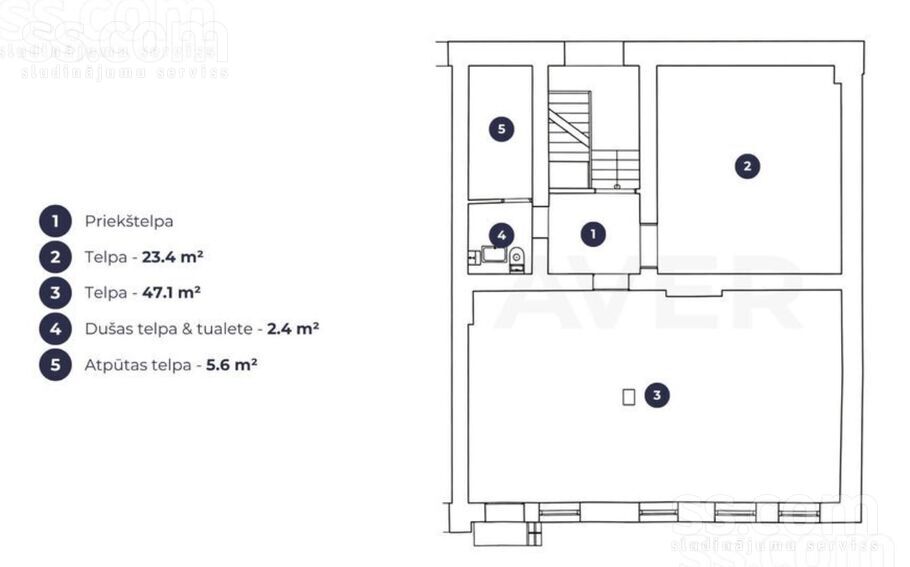
Plānojuma apraksts:
- divas plašas telpas;
- dušas telpa un tualete;
- atpūteas telpa;
- priekštelpa;
- divas ieejas - no ielas un no pagalma.
Spiediet "apskatīties" sludinājuma apakšā, lai virtuāli izstaigātu telpas (3D tūre).
Katrā telpā uzstādīts gaisa siltumsūknis, kas vasarā atdzesē gaisu, savukārt ziemā sasilda. Papildus apkurei iespējams izmantot cietā kurināmā krāsni (malka vai briketes). Pieejams gāzes pieslēgums.
Komunālie maksājumi ziemā ~ 200 EUR/mēn. , vasarā ~ 100 EUR/mēn. Nekustamā īpašuma nodoklis - 300 EUR/gadā. Īpašums reģistrēts kā kopīpašums (ir tikai 2 kopīpašnieki). Zeme ir īpašumā. Ēku apsaimnieko SIA Alpex.
Pieejams šķūnis mantu vai kurināmā uzglabāšanai.
Pagalmā iespējams izīrēt stāvvietu vienai automašīnai. Klientiem pieejama maksas stāvvieta uz ielas (C zona) vai bezmaksas stāvvieta uz Lienes ielas.
Teicama atrašanās vieta, blakus pieejama visa ikdienā nepieciešamā infrastruktūra. Sabiedriskais transports 2-3 minūšu pastaigas attālumā, tuvākais pārtikas veikals Lats tikai 4 minūšu gājiena attālumā. Tuvumā skaistais Ziedoņdārza parks, kur doties nesteidzīgās pastaigās svaigā gaisā.
Zvaniet, rakstiet (SMS, Whatsapp, E-mail), lai noskaidrotu sīkāku informāciju.
Продаются коммерческие помещения площадью 85 м² в цокольном этаже с окнами на сторону улицы.
Объект зарегистрирован как нежилое помещение, группа помещений - магазин. В настоящее время используется как танцевальный зал, но подходит также для кафе, парикмахерской, магазина, мастерской или другого вида бизнеса.
Планировка:
- две просторные комнаты;
- душевая и туалет;
- комната отдыха;
- прихожая;
- два входа - с улицы и со двора.
Нажмите "посмотреть" внизу объявления, чтобы виртуально пройти помещения (3D тур).
В каждом помещении установлен воздушный тепловой насос, который охлаждает летом и обогревает зимой. Дополнительно можно использовать печь на твёрдом топливе (дрова или брикеты). Доступно подключение газа.
Коммунальные платежи зимой ~ 200 EUR/мес. , летом ~ 100 EUR/мес. Налог на недвижимость - 300 EUR/год. Объект зарегистрирован как долевая собственность, земля в собственности. Здание обслуживает SIA Alpeks.
Имеется сарай для хранения вещей или топлива.
Во дворе возможно арендовать парковочное место для одного автомобиля. Для клиентов доступна платная парковка на улице (зона C) или бесплатная парковка на улице Lienes.
Отличная локация - рядом вся необходимая инфраструктура. Общественный транспорт в 2-3 минутах пешком, ближайший продуктовый магазин Lats - в 4 минутах. Рядом находится парк Ziedoņdārzs, отличное место для прогулок.
Звоните, пишите (SMS, Whatsapp, E-mail), чтобы узнать более подробную информацию.
Commercial premises of 85 m² are for sale in a semi-basement floor with windows facing the street.
The property is registered as non-residential premises, use group - shop. Currently arranged as a dance studio, but suitable for a café, hair salon, shop, workshop or other commercial use.
Layout:
- two spacious rooms;
- shower and toilet;
- lounge room;
- entrance hall;
- two entrances - from the street and from the courtyard.
Click "view" at the bottom of the listing to take a virtual tour of the premises (3D tour).
Each room is equipped with an air heat pump for cooling in summer and heating in winter. Additional heating can be provided by a solid fuel stove (wood or briquettes). Gas connection is available.
Utility payments in winter ~ 200 EUR/month, in summer ~ 100 EUR/month. Property tax - 300 EUR/year. The property is registered as shared ownership, land is owned. The building is managed by SIA Alpeks.
A shed is available for storage of items or fuel.
Parking for one car can be rented in the courtyard. Customers can use paid street parking (Zone C) or free parking on Lienes Street.
Excellent location - all necessary infrastructure nearby. Public transport is 2-3 minutes walking distance, the nearest grocery store Lats is 4 minutes away. The nearby Ziedoņdārzs park is perfect for relaxing walks.
Call or write (SMS, Whatsapp, E-mail) for more information.