💼 Mazrūdas, Mārupes nov.
1 / 36 ▶




































Informācija
€6400
| Tips | biroji |
| Adrese | Mazrūdas, Mārupes nov. |
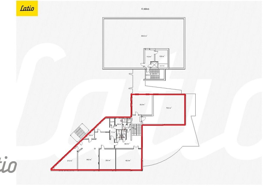
| Platība | 800 m² |
| Stāvs | 1 |
| Stāvu skaits | 4 |
| Publicēts | 31.03.2026 18:09 |
| Avots | city24.lv |
Iznomā autonomu 4 stāvu biroja ēku Mazrūdas biznesa centrā, lidostas Rīga rajonā.
Ēka labā tehniskā un vizuālā stāvoklī, piemērota uzņēmumam ar lielāku darbinieku skaitu.
Plānojums un aprīkojums:
- Katrā stāvā vairāki kabineti un sanmezgli;
- 1.stāvā plaša halle ar recepcijas zonu;
- Gāzes apkure;
- Kondicionēšana un dzesēšana;
- Ventilācija ar rekuperāciju.
Priekšrocības:
- Ērta atrašanās vieta pie lidostas;
- Laba redzamība;
- Plaša autostāvvieta pie ēkas;
- Blakus 22. autobusa pietura;
- Elektroauto uzlādes stacija.
Papildus maksājumi:
Autostāvvieta – 25 EUR/mēn.;
Apsaimniekošana – 3,5 EUR/m²;
Komunālie maksājumi;
PVN 21%.