🏢 Viestura laukums 3, Valmiermuiža, Valmiera un raj., Valmieras pag.
1 / 10 ▶










Informācija
€29900
| Tips | dzivoklis |
| Adrese | Viestura laukums 3, Valmiermuiža, Valmieras pag., Valmieras nov., LV-4219 |
| Istabas | 1 |
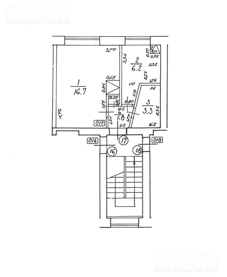
| Platība | 28 m² |
| Stāvs | 3/3 |
| Sērija | Renov. |
| Mājas tips | Ķieģeļu |
| Kadastra Nr. | 96909000476 |
| Koordinātes | 57.551821, 25.437078 ↗ |
| Publicēts | 27.03.2026 18:00 |
| Avots | ss.com |
Pārdodu mājīgu 1 istabas dzīvokli Valmiermuiža, Viestura laukumā 3. Dzīvoklis atrodas renovētā ķieģeļu mājā 3. stāvā (3/3), kopējā platība – 28 m².
Dzīvoklis ir labā stāvoklī: 2015. gadā nomainīti logi un veikts neliels kosmētiskais remonts. Plānojums ērts – atsevišķa virtuve, vannas istaba apvienota ar tualeti. Logi vērsti uz dienvidiem, līdz ar to dzīvoklis ir gaišs un saulains. Pie dzīvokļa ir arī pagraba sekcija.
Mēbeles un sadzīves tehnika paliek jaunajam īpašniekam (ir veļas mašīna), tāpēc var nākt un dzīvot uzreiz. Apkure centrālā, komunālie maksājumi apmēram ~80 € ziemā un ~50 € vasarā.
Zemesgrāmata kārtībā, apgrūtinājumu nav.