🏠 Nākotnes 18, Rīgas rajons, Sigulda
1 / 20 ▶




















Informācija
€98500
| Tips | maja |
| Adrese | Nākotnes iela 18, Sigulda, Siguldas nov., LV-2150 |
| Istabas | 9 |
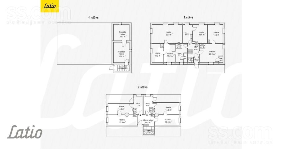
| Platība | 246 m² |
| Zemes platība | 2116 m² |
| Stāvu skaits | 2 |
| Koordinātes | 57.160926, 24.888632 ↗ |
| Publicēts | 27.03.2026 15:22 |
| Avots | ss.com |
Pārdod Īpašumu Siguldā – Nākotnes Ielā 18
Pārdošanā nekustamais īpašums Siguldā, klusā un zaļā privātmāju apkaimē – Nākotnes ielā 18. Īpašums gan privātmājas izbūvei, gan kā investīciju objekts nākotnei.
Uz 2116 m² plaša zemes gabala atrodas dzīvojamā ēka ar kopējo platību 246, 6 m², celta 1935. gadā. Ēka iepriekš bijusi apdzīvota, taču šobrīd atrodas sliktā tehniskā stāvoklī un prasa būtiskas investīcijas renovācijā vai pārbūvē.
Komunikācijas:
Elektrība
Pilsētas ūdens un kanalizācijas tīkli atrodas gar ielu, ar iespēju pieslēgties
Atrašanās vieta:
~1, 8 km līdz skolai un pirmsskolas izglītības iestādei
~2, 5 km līdz Siguldas dzelzceļa stacijai
Liels zemes gabals, laba infrastruktūra un perspektīva apkārtne padara šo īpašumu par izcilu iespēju tiem, kas vēlas izveidot mājokli pēc saviem ieskatiem vai veikt ilgtermiņa ieguldījumu.
ПРОДАЁТСЯ НЕДВИЖИМОСТЬ В СИГУЛДЕ – УЛ. NĀKOTNES 18
Продаётся недвижимость в Сигулде, в тихом и зелёном районе частной застройки ул. Nākotnes 18. Объект с большим потенциалом как для строительства частного дома, так и в качестве инвестиционного проекта на будущее.
На земельном участке площадью 2116 м² расположено жилое здание общей площадью 246, 6 м², построенное в 1935 году. Дом ранее был жилым, однако в настоящее время находится в очень плохом техническом состоянии и требует значительных вложений в реконструкцию или перестройку.
Коммуникации:
Электричество
Городские водопровод и канализация проходят вдоль улицы, имеется возможность подключения
Расположение:
~1, 8 км до школы и дошкольного учебного заведения
~2, 5 км до железнодорожной станции Сигулда
Большой земельный участок, развитая инфраструктура и перспективное окружение делают этот объект отличной возможностью для тех, кто хочет создать дом по своему вкусу или вложиться в недвижимость на долгосрочную перспективу.
PROPERTY FOR SALE IN SIGULDA – NĀKOTNES STREET 18
A property for sale in Sigulda, located in a quiet and green private residential area Nākotnes Street 18. The property offers great potential both for building a private home and as a long-term investment opportunity.
The 2, 116 m² land plot includes a residential building with a total area of 246.6 m², built in 1935. The house was previously inhabited but is currently in very poor technical condition and requires substantial investment for renovation or reconstruction.
Utilities:
Electricity
City water supply and sewerage networks run along the street, with the possibility to connect
Location:
~1.8 km to the nearest school and preschool
~2.5 km to Sigulda railway station
A large land plot, good infrastructure and a promising location make this property an excellent choice for those looking to create a home tailored to their needs or to invest in real estate for the future.